Calís

Año 2025 – 2026

Categoría Obra Nueva

Localización Sant Cugat del Vallès

En colaboración con A01.studio 

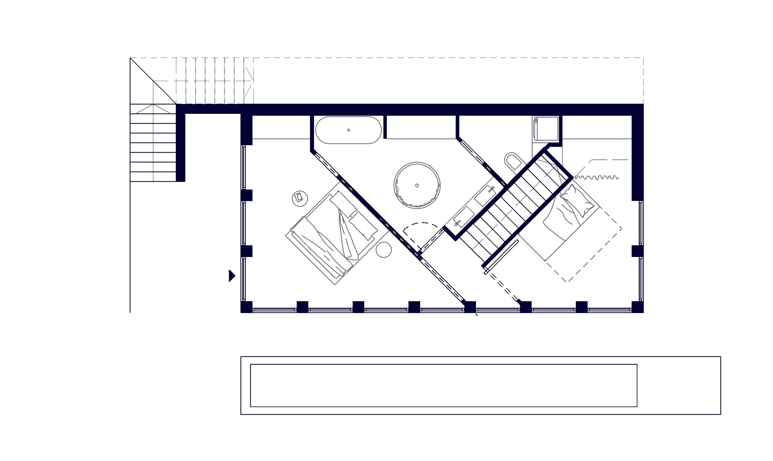
Superficie 120 m2

Estado En construcción

Una casa integrada en el bosque mediterráneo: la idea detrás de Calís.

Reflejos naturales.

Esta residencia se integra en armonía en un entorno boscoso mediterráneo, en diálogo constante con la naturaleza que la rodea.

Construir una vivienda unifamiliar en Sant Cugat
Render por A01.studio

Una vivienda que se abre al Mediterráneo, con espacios conectados y una enorme envolvente que regula vistas, luz y privacidad.

arquitecto en sant cugat. Qué hace un arquitecto en Sant Cugat. Licencias de obra en Sant Cugat.
RENDER POR A01.STUDIO

Ritmo, luz y elegancia atemporal.

El proyecto se caracteriza por una geometría depurada y una estructura rítmica de arcos que evocan una elegancia atemporal, convirtiéndose en uno de los proyectos de arquitectura insignia de Cala Estudi en Sant Cugat. Las generosas aberturas y el uso del vidrio permiten que la luz natural inunde los espacios interiores, creando una atmósfera serena y contemplativa.

«Una arquitectura que acompaña en vez de imponer, respetuosa con el lugar y pensada para ser habitada con calma».

Arquitectura que se funde con el entorno.

Los materiales, como el hormigón pulido y la piedra natural, aportan calidez y una continuidad visual con el exterior. El juego de reflejos en la lámina de agua y la integración del arbolado existente refuerzan la conexión con el entorno y potencian la experiencia sensorial de la vivienda. Este proyecto expresa nuestra visión de una arquitectura que no impone, sino que acompaña, respetuosa con el lugar y pensada para ser habitada con calma.

arquitecto sant cugat
RENDER POR A01.STUDIO