Escaletes

Año 2025 – 2026

Categoría Obra Nueva

Localización Sant Pol de Mar

Cliente Privado 

Superficie 220 m2

Estado En construcción

Un terreno en pendiente, una urbanización tranquila y vistas al Mediterráneo entre pinos: las tres piezas que definen a Escaletes.

Esquina al mar.

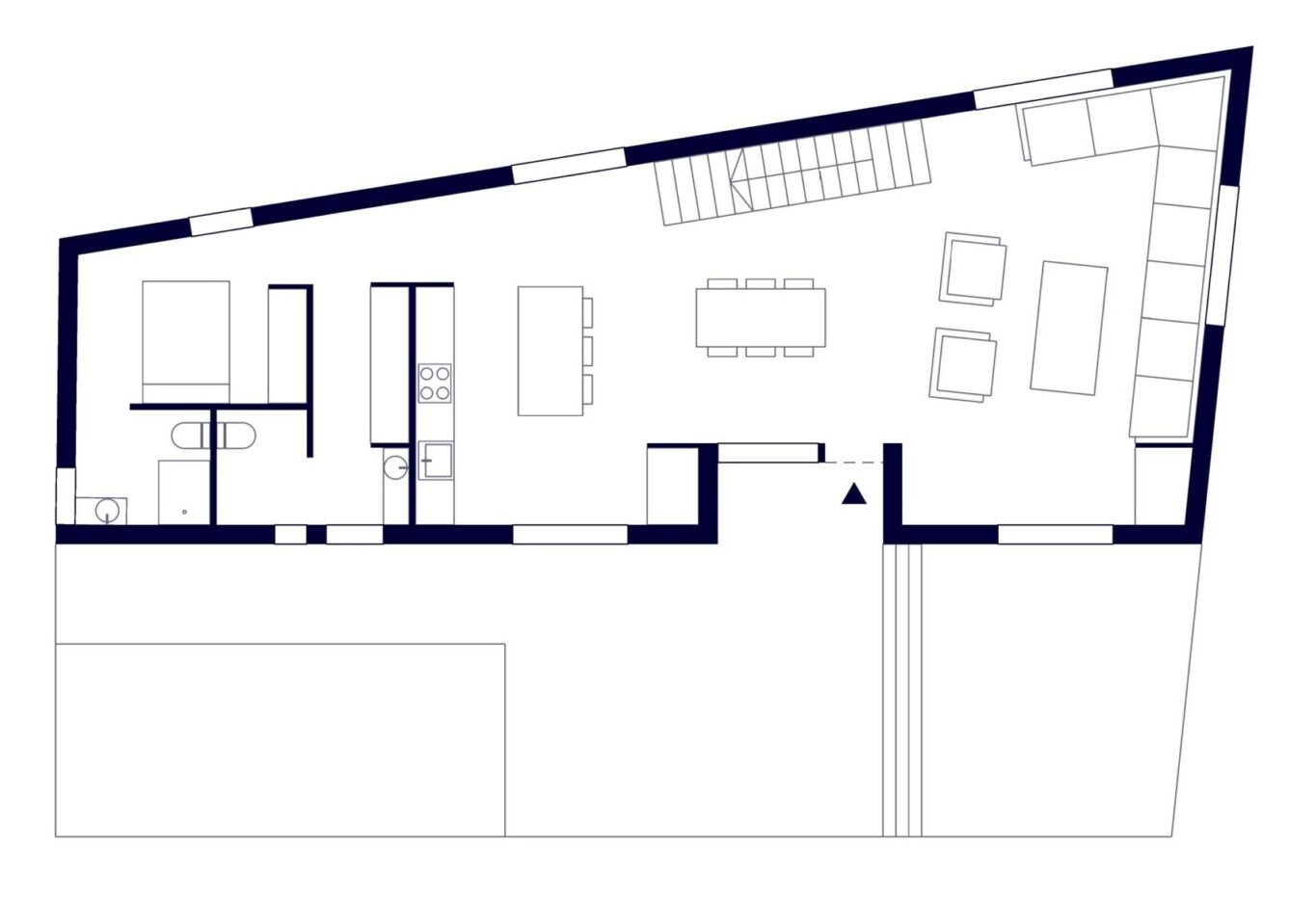
Escaletes es uno de nuestros proyectos de arquitectura en El Maresme más reseñable. El proyecto se sitúa en el límite oeste del núcleo de Sant Pol de Mar, en una urbanización muy tranquila con una parcela en pendiente que ofrece vistas al Mediterráneo entre pinos.

La propuesta aprovecha estas condiciones para ubicar el garaje soterrado, dejando libre todo el resto para la vivienda, de planta baja y primer piso, y las zonas verdes exteriores con la piscina. Las fachadas sur y oeste cuentan con grandes superficies acristaladas que relacionan la casa con el jardín, y al mismo tiempo, la fachada este se retranquea para ganar vistas al mar.

arquitecto en el Maresme. Qué incluye el trabajo de un arquitecto

Una vivienda que se abre al Mediterráneo, con espacios conectados y una enorme envolvente que regula vistas, luz y privacidad.

Arquitecto en el Maresme.

Una distribución para convivir y desconectar.

En la planta baja encontramos la zona de día con la sala de estar-comedor, la cocina, dos baños y una habitación doble independiente. En la primera planta hay tres habitaciones dobles más y dos baños, uno de ellos dentro de la suite, que cuenta con vestidor y terraza. Finalmente, una zona central de despacho abierto configura el espacio común de la primera planta y la conecta con la planta baja a través de la escalera.

Una vivienda que se abre al Mediterráneo, con espacios conectados y una enorme envolvente que regula vistas, luz y privacidad.

Una envolvente que ordena niveles y controla la luz.

Unos zócalos de diferente materialidad en la fachada marcan los distintos niveles de la nueva vivienda y acentúan su componente horizontal, solo interrumpido por unas persianas correderas de madera que filtran la luz hacia el interior y permiten la ventilación y la privacidad. Puedes ver cómo avanza la obra en este video en Instagram

Qué incluye el trabajo de un arquitecto para una casa unifamiliar en el Maresme