Gonone

Año 2021

Categoría Obra Nueva

Localización Lliçà d’Amunt

Cliente Privado 

Superficie 220 m2

Estado Finalizado

En una tranquila zona residencial, en torno a un olivo que siempre estuvo, nace Gonone.

Un olivo como protagonista.

Para esta familia, la separación entre las áreas de día y de noche es esencial. Durante la semana, cada espacio cumple su función, ofreciendo privacidad y descanso, mientras que los fines de semana, la zona de estar se convierte en el corazón del hogar, un lugar de encuentro y convivencia. Además, hay un elemento que siempre ha formado parte de sus viviendas: un olivo, símbolo de sus raíces y su historia, que será protagonista en el proyecto.

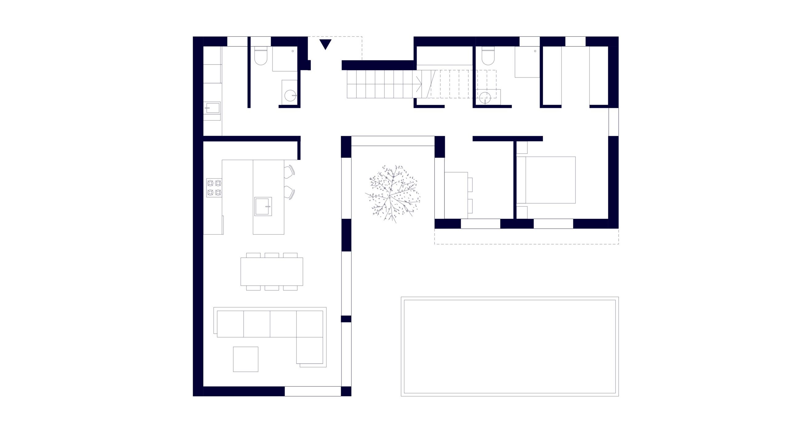
El árbol, en el centro, organiza los espacios alrededor.

Un árbol como eje del proyecto.

El proyecto se ubica en una zona residencial muy tranquila, en contacto con la naturaleza y a pocos minutos del centro del pueblo. La parcela, de forma rectangular, linda al norte con la calle y se abre al bosque en el sur. 

La inserción de un árbol en uno de los retranqueos centrales estira verticalmente la propuesta y organiza los espacios de circulación y estancia, junto con la escalera que sube a la planta primera. En el interior, los acabados de tonos cálidos contrastan con el exterior blanco, más frío, que sirve de fondo de telón del árbol. 

La zona de día se abre al exterior mientras la vida privada se reserva en la planta superior.

La planta baja como punto de encuentro.

El programa se organiza por plantas creando una zona más íntima para la familia en planta primera y dejando la zona de día en planta baja, en relación con la piscina y el espacio exterior. La cocina, abierta y luminosa, se sitúa como una pieza central en la planta baja, favoreciendo la relación directa con el comedor y el exterior, y convirtiéndose en un punto de encuentro cotidiano.

Cocina moderna con tonos oscuros e iluminación cálida en la casa Gonone.