Rubina

Año 2025 – 2026

Categoría Obra Nueva

Localización Viladecavalls

Cliente Privado 

Superficie 375 m2

Estado En construcción

«Lo que nos hace sentir en casa son los espacios altos, la luz natural y poder reunirnos con amigos y familia», nos comentó esta familia.

Horizontalidad transparente.

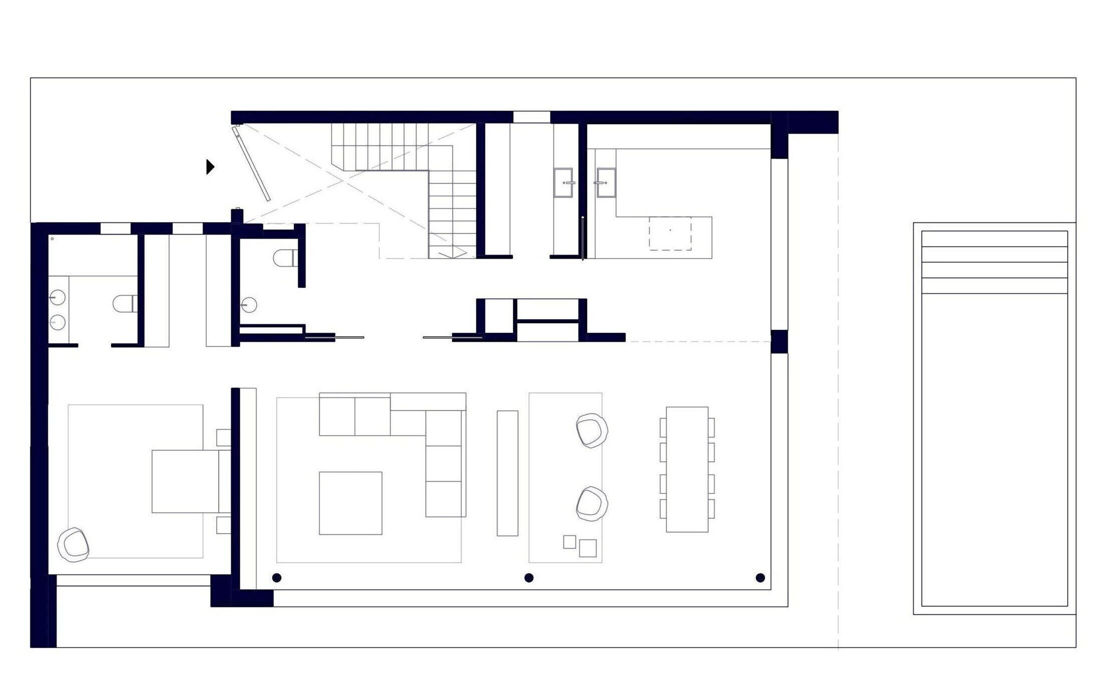
Para esta familia, la sensación de hogar se construye con espacios altos, abundante luz natural y la posibilidad de reunirse con amigos y seres queridos. La fluidez entre el interior y el exterior crea un ambiente abierto y acogedor, perfecto para disfrutar de momentos compartidos.

Diluir el límite entre interior y exterior para favorecer la vida compartida.

Interior en expansión.

El proyecto se ubica en el límite sur de la población de Viladecavalls, en una parcela ligeramente inclinada por encima del entorno, ofreciendo vistas de las montañas del Vallès. La propuesta aprovecha estas condiciones abriendo las fachadas sur y oeste hacia el exterior con grandes superficies acristaladas. La planta baja desdibuja el límite entre el espacio interior y el exterior, donde la pieza del jardín busca ser la extensión del salón. En la primera planta las transparencias están más controladas, enfocando las vistas deseadas en cada estancia.

Las tres claves del proyecto: voladizos que dan sombra, estancias bien orientadas y una casa que se abre hacia la piscina.

Transformación de Espacios Interiores en Barcelona

Todo en su sitio.

Los voladizos pronuncian la horizontalidad de la casa, ofreciendo también protección solar en verano, y el interior se distribuye estratégicamente con los dormitorios y salas principales en orientación sur y las estancias menos concurridas en orientaciones menos favorables. Finalmente, unos pilares circulares envueltos con las carpinterías correderas por el exterior nos permiten abrir la esquina que linda con la piscina. Puedes ver cómo avanza la obra en este video en Instagram